M. Arch Project - Spring 2024
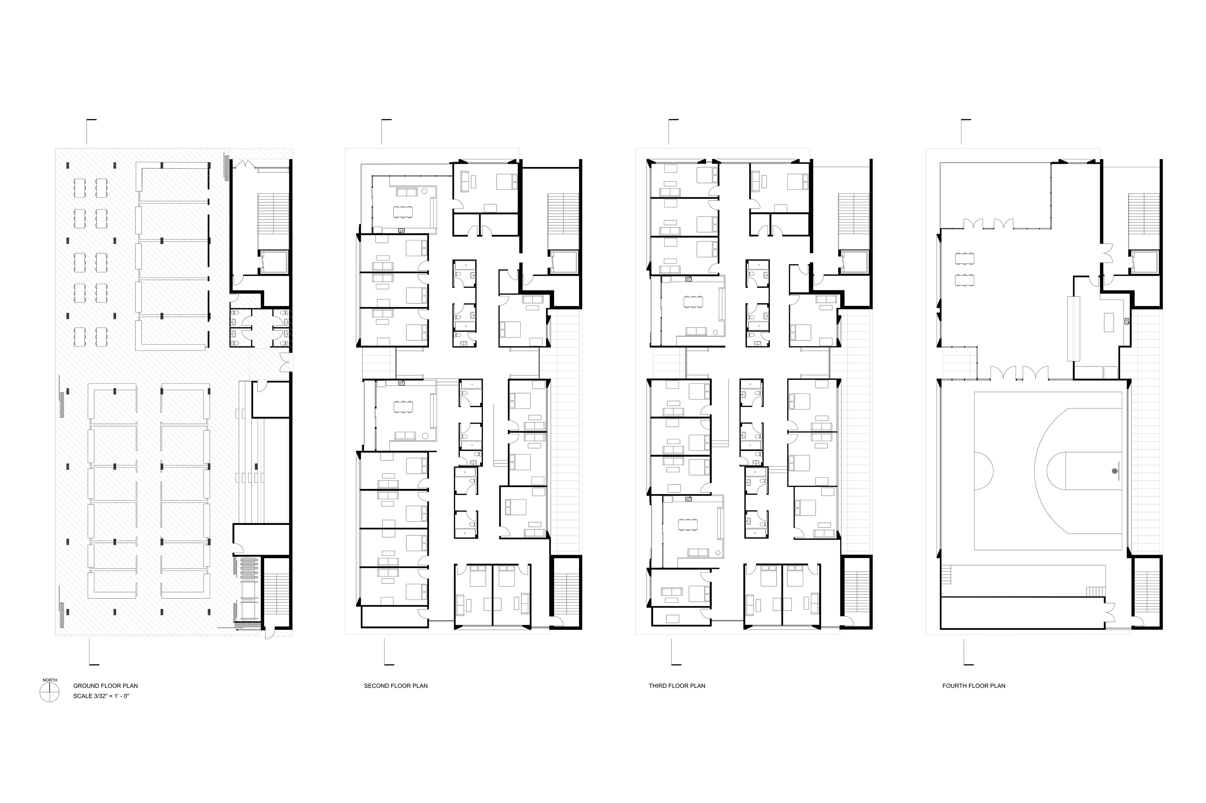
Developed with the scale of the neighborhood at the forefront, TIMBERMARKT breaks a large volume into two perceived forms, and utilizes an organized pattern of open and closed apertures in order to reduce its monumentality in favor of an accessible facade at the street level. The mass timber structure combines 30 residential units on two private floors, a year round open-air market hall, and a public event space with a community basketball court. TIMBERMARKT occupies Fourth Street as well, with new trees and planter benches negotiating rough hewn boulders that aggregate into a playground for the city’s young families. In the summer months Fourth Street can be closed off and fully occupied by modular booths and a farmer’s market for all.















